Parcela en Sanguiñeda- Mos con Proyecto y Licencia de Construcción
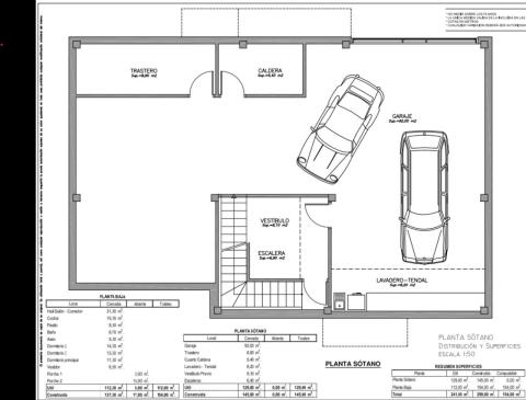
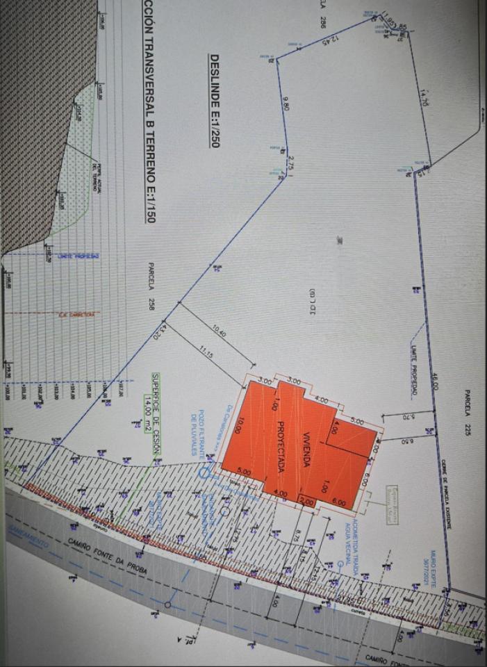
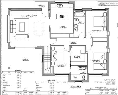
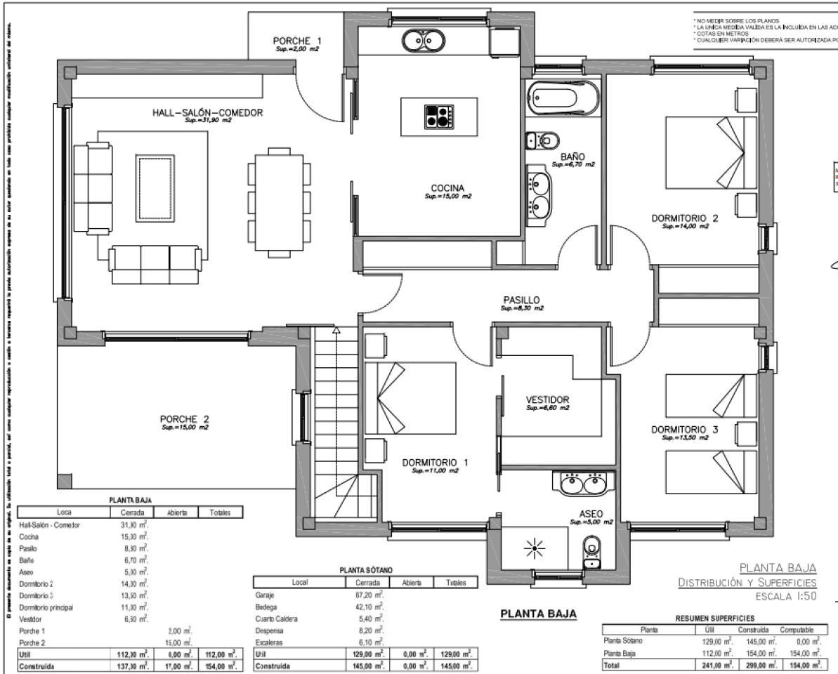
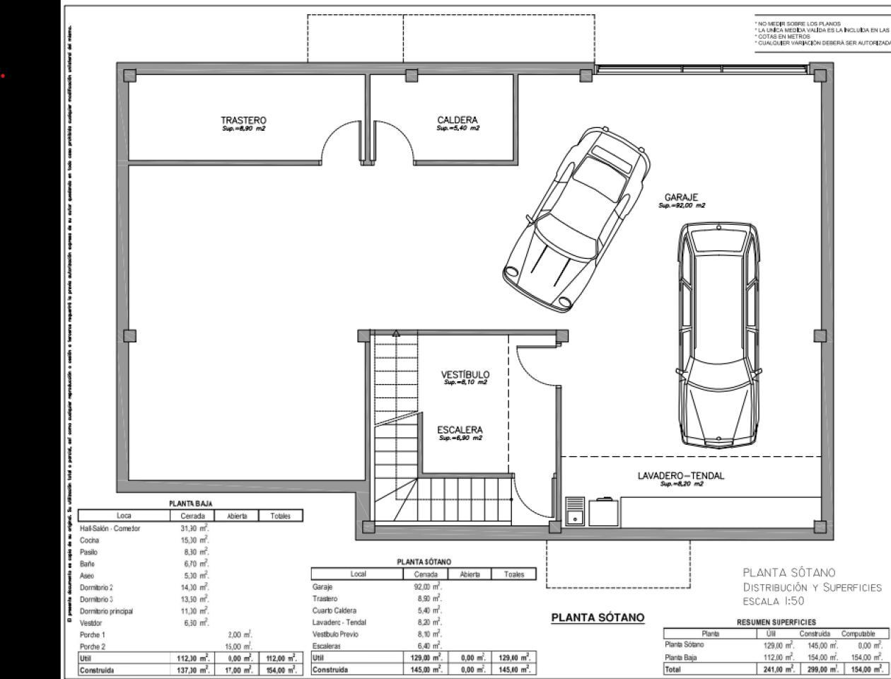
Desde MS Gestión Inmobiliaria te ofrecemos en exclusiva una parcela de 1580 metros cuadrados ubicada en Sanguiñeda- Mos, con proyecto y licencia de construcción para una vivienda unifamiliar de 300 metros cuadrados distribuida en planta sótano y planta baja. Esta propiedad representa una excelente inversión en un entorno de alta calidad y con acceso a todos los servicios necesarios.
Características Principales:
-Ubicación Estratégica: Situada a solo 5 minutos de Porriño y a 20 minutos de Vigo, la parcela ofrece una ubicación conveniente que combina la tranquilidad de un entorno residencial con la proximidad a las principales áreas urbanas .En las cercanías encontrarás supermercados, tiendas, restaurantes, centros educativos y todo lo que puedas necesitar en tu día a día y con fácil acceso a la autovía.
-Servicios Disponibles
Acceso Rodado: Entrada asfaltada y de fácil acceso.
Alumbrado Público: Equipamiento completo de iluminación exterior.
Saneamiento Municipal y Recogida de Basuras: Servicios de gestión de residuos y saneamiento garantizados.
Abastecimiento de Agua: Conexión al sistema municipal de agua potable.
Telecomunicaciones: Infraestructura para conexión de servicios de telecomunicaciones.
-Licencia y Proyecto: La parcela cuenta con proyecto y licencia de construcción aprobados en Mayo de 2024, lo que facilita el inicio de la obra sin demoras adicionales.
Este terreno está perfectamente preparado para el desarrollo de una vivienda unifamiliar, con todos los servicios necesarios ya establecidos. Es una opción ideal para aquellos que buscan construir en un área con excelentes conexiones y un entorno residencial de calidad.
Para más información o para programar una visita, contáctenos. Estaremos encantados de proporcionarle todos los detalles necesarios y asistirle en el proceso de adquisición.
¿Necesitas ayuda con la financiación? ¿Te preguntas cómo vas a pagar esta vivienda? En MS GESTIÓN INMOBILIARIA dispondrás siempre del asesoramiento financiero que necesites de la mano de nuestros colaboradores especialistas. Todo, por supuesto, sin ningún coste ni compromiso.
Representamos este inmueble en exclusiva. Nuestra filosofía es la colaboración, así que si eres agente inmobiliario y tienes un cliente al que pueda interesarle este inmueble, no dudes en ponerte en contacto con nosotros.
Nota: este anuncio es meramente informativo y carece de valor contractual, puede contener algún error involuntario.
¡Consúltanos!

